![]()
Program/ Cultural Arts + Exhibition
Concept/ Flexible Events Spaces
Materials/ Wood, Metal, Glass, Light
Location/ Grand Haven, Michigan
News/ Grand Haven Tribune
Completion/ 2005
![]()
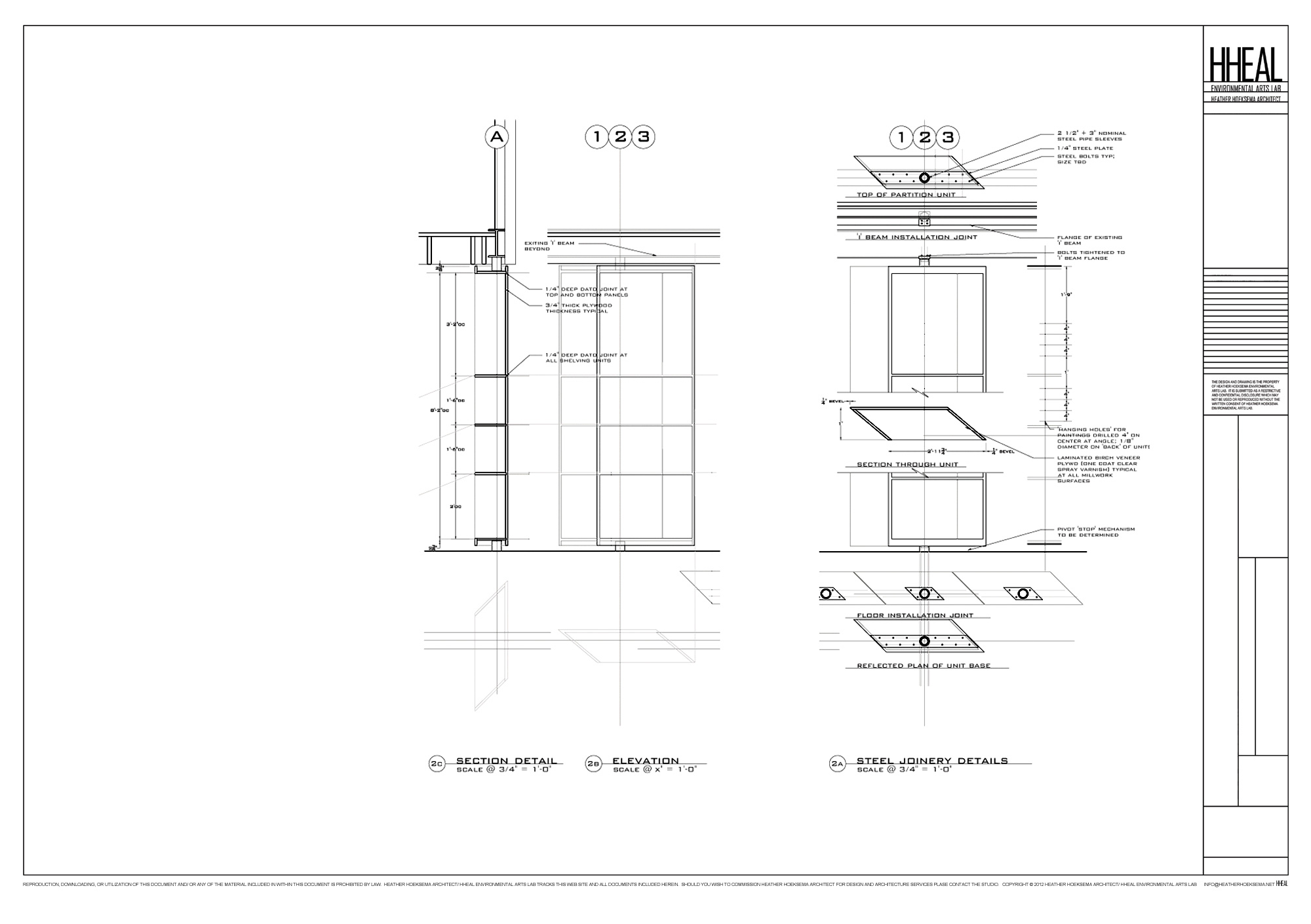
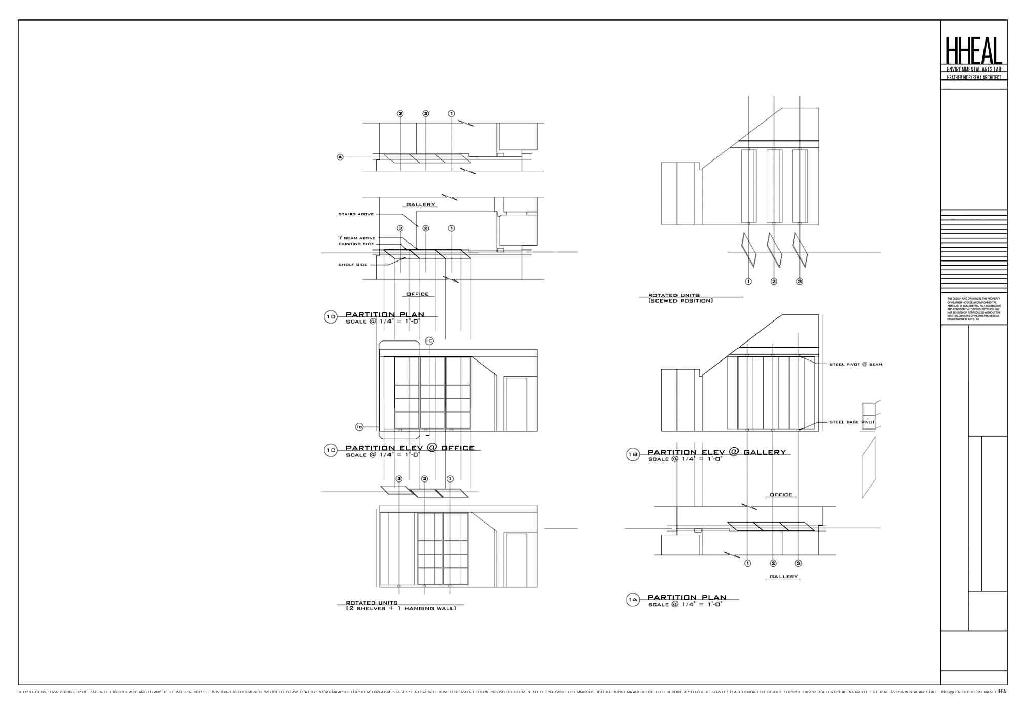
This fine art gallery redesign was inspired by an upcoming show with an aerial scenery painter. The main design feature is a rotating projection wall that accommodates scultpture on one side and paintings on the other, engineered and fabricated by Hoeksema. The wall bisects the atmosphere, physically and energetically, by separating the office area in the back from the gallery space in the front. Additional architectural features included new wall colors, lighting, and a grass field wall diffusing the natural light entering from the glass block clerestory.
• Passive air circulation control
• Flexible use of place
• Kit of parts fabrication
• Community art events






